Smještaj
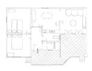
Veliki apartman prizemlje
Površina 75 m2
Terasa 25 m2
Dvije spavaće sobe
Kuhinja
Blagovaona
Dnevna soba
Kupaonica
Toalet - WC
Pogled na more
Apartman 1. kat desno
Površina 49 m2
Terasa 10 m2
Dvije spavaće sobe
Kuhinja
Dnevna soba
Kupaonica + Toalet WC
Pogled na more
















